Historische villa in Intra met privé tuin

Verbania, Via della Resistenza, Piemonte, Italië

EUR 620.000
  1. Commissie 3,5%
  1. Historische villa
  2. Bouwjaar 1900
  3. 287 m² Totale oppervlakte
  4. 680 m² Perceel
  5. 8 Kamers
  6. 6 Slaapkamers
  7. 3 Badkamers
  8. 3 Vloeren

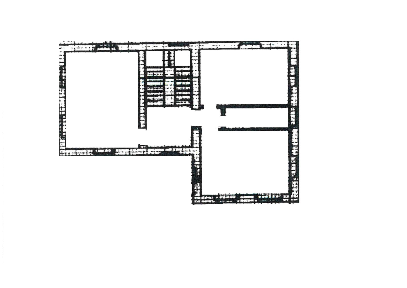
Op slechts enkele minuten lopen van het centrum van Intra en de oever van het meer, wordt deze historische villa uit het einde van de 19e eeuw aangeboden in grotendeels originele staat. De vier verdiepingen hebben goed ingedeelde en lichte ruimtes, verbonden via een brede trap.

Op de begane grond bevinden zich de hal, meerdere kamers met open haarden, een woonkeuken en een bijkeuken.

De hoofdslapkamers bevinden zich op de eerste verdieping en omvatten een grote master bedroom met eigen badkamer, twee extra slaapkamers en een tweede badkamer. De omgebouwde zolder biedt drie extra kamers en een badkamer, geschikt als gastenkamers, kantoor of hobbyruimte.

In de kelder bevinden zich twee ruimtes met gewelfde plafonds, waaronder de verwarmingsruimte.

De villa behoudt architectonische details en originele materialen, wat een voorzichtige renovatie mogelijk maakt. De hoofdentree is representatief vormgegeven.

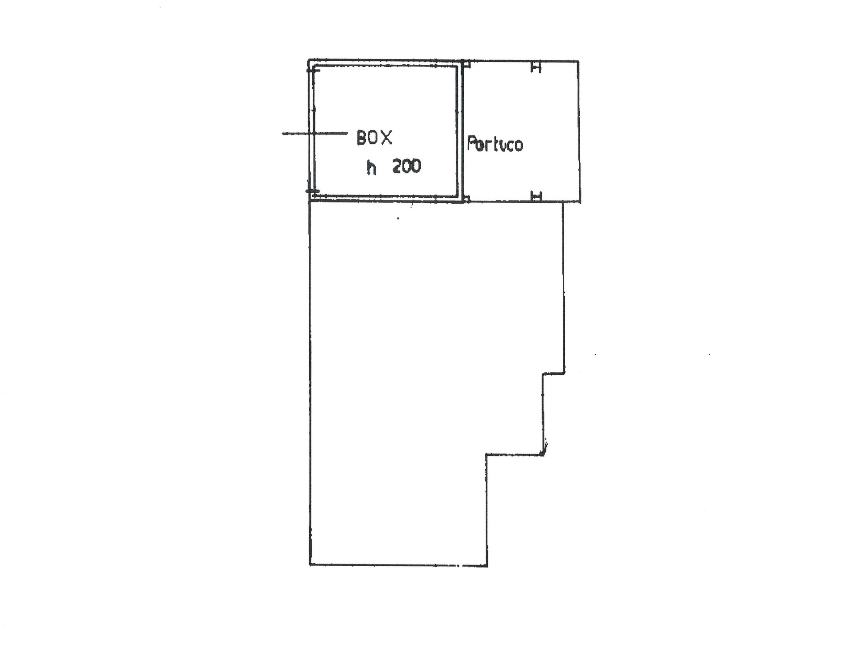
Het pand beschikt over een privé tuin en een garage.

  • Afstanden:
  • Centrum van Intra – te voet
  • Meer oever – te voet
  • Verbania – enkele minuten
  • Milaan – ca. 1 uur 30 min
  • Luchthaven Malpensa (MXP) – ca. 1 uur

Plattegronden

Juridische informatie

Makelaarskantoor

Città Ideale

Corso Mameli 203

28921 Verbania Intra

Italië
Contact
Vast: +39 0323 407435
Volg Città Ideale

Ontvang nieuwe vastgoedaanbiedingen van dit agentschap per e-mail. De zoekopdracht kan te allen tijde worden gedeactiveerd.

Objectnr. CA.2012-P54
Bel (Vast)

Abonnee · Alle objecten · Juridisch

  • REALPORTICO-ID
    2795073
  • Laatst gewijzigd
    vorige maand
  • Bekeken op
    1.18k
  • Bereikte mensen
    990
Dit vastgoedaanbod heeft tot nu toe mensen in deze landen bereikt
Weergaven laatste 30 dagen

Città Ideale

Ontdek andere historische panden

28824 Oggebbio, Piemonte
Historisch pand met uitzicht op het Lago Maggiore in Oggebbio
28823 Ghiffa, Piemonte
Gerestaureerd historisch huis met drie wooneenheden en uitzicht op het meer
28823 Ghiffa, Piemonte
Historische villa in Ghiffa aan het Lago Maggiore